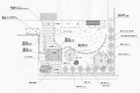
O様邸エクステリア工事図面(縮小)・お見積もり
お見積もり
工 事 区 分
数量
単位
金 額
1
水盛遣り方・準備工
1
式
10,000円
2
解体工
1
式
80,000円
3
アプローチ工
1
式
269,320円
4
ブロック積み工
1
式
66,150円
5
補修工
1
式
29,000円
6
手すり工
1
式
65,945円
7
造園工
1
式
180,760円
諸経費(7%)
43,475円
計
664,550円
値引き
−4,550円
工事合計お見積もり金額
660,000円